© 2026 Regimo Zürich

MIETEN OHNE KAUTION - Ihr steuergünstiges Wohnidyll nahe Zürich

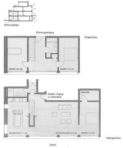
Möchten Sie im Grünen wohnen, aber die Stadtnähe nicht missen? Diese charmante Wohnung auf zwei Etagen, an sonniger Hanglage, könnte genau das Richtige für Sie sein. Profitieren Sie von den direkten Anbindungen an den öffentlichen Verkehr sowie an die Autobahn.

Für Ihre Wohnqualität:
 - Halboffene Küche mit Glaskeramik und Geschirrspüler
 - Badezimmer/WC mit eigenem Waschturm
 - Separate Dusche/WC
 - Ganze Wohnung mit Parkettboden
 - Ankleide im Schlafzimmer
 - Réduit
 - Sonniger Gartensitzplatz
 - Direktzugang zum Kellerabteil

Zusätzlich auf Wunsch: E-Einstellplatz Tiefgarage CHF 170.-/Monat.

Bei diesem Mietobjekt müssen Sie nicht wie üblich drei Monatsmieten als Kaution auf ein Sperrkonto einzahlen. So bleiben Sie liquid, da nicht eine grössere Geldsumme für die Dauer Ihres Mietverhältnisses blockiert ist. Und das Beste: Das Angebot "Mieten ohne Kaution" ist für Sie gratis. Erfahren Sie mehr auf: https://regimo.ch/kaution oder auf dem Flyer in der Fotoserie des Inserates.

Interessiert? Dann lohnt sich eine Besichtigung.

85 m
Öffentlicher Verkehr
300 m
Einkaufsmöglichkeit
500 m
Schule / Kindergarten
balkon Balkon / Sitzplatz

Weitere Objekte von Regimo Zürich